1. Thông tin dự án
Tên dự án: Cung cấp và lắp đặt thiết bị bếp ăn cho nhân viên công ty quy mô 60-80 người
Địa điểm: 18B Hồ Đắc Di- Quang Trung – Hà Nội
Thời gian thực hiện: Tháng 12/2025
Chủ đầu tư: Công ty CP Hiroki
Đơn vị thi công: Công ty CP TM & SX Khang Phát
2.Quy mô & mặt bằng
Số suất ăn: 60 – 80 suất/bữa
Diện tích bếp phù hợp: 25 – 35 m²
Mô hình: Bếp 1 chiều (nhận hàng → sơ chế → nấu → chia suất → rửa)
– Khu rửa sơ chế gồm có :
Tủ đông 2 cánh
Tủ mát 2 cánh
Chậu rửa đôi có giá nan 2 tầng trên chậu
Bàn sơ chế lót gỗ
– Khu nấu gồm có:
Bếp Á đôi
Bếp điện từ đơn
Nồi cơm điện
Chụp hút khói inox + ống dẫn + quạt hút
Bàn inox ra đồ
– Khu bát đũa:
Tủ sấy bát đũa
Giá phẳng 4 tầng để đồ
3. Thiết kế theo mặt bằng chủ đầu tư :

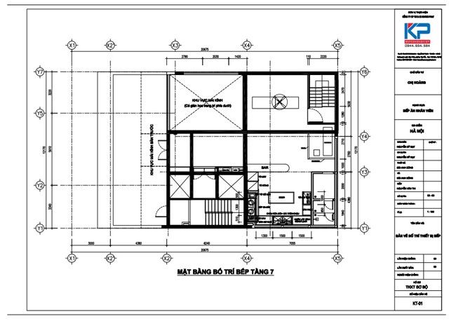
Bản vẽ bố trí thiết bị bếp công ty quy mô 60-80 suất ăn

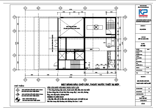
Bản vẽ bố trí đầu chờ cấp, thoát nước cho thiết bị bếp

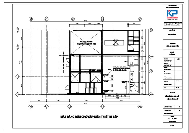
Bản vẽ đầu chờ cấp điện cho thiết bị bếp
4. Hình ảnh thực tế khi thi công :

Chi tiết tủ đông, tủ mát 2 cánh dùng cho khu bếp

Chi tiết khu rửa bếp 60-80 suất tại Hồ Đắc Di

Khu rửa bếp 60-80 suất tại Hồ Đắc Di

Khu rửa bếp 60-80 suất tại Hồ Đắc Di -1

Khu rửa bếp 60-80 suất tại Hồ Đắc Di-2

Khu rửa bếp 60-80 suất tại Hồ Đắc Di-3

Khu nấu bếp 60-80 suất tại Hồ Đắc Di

Khu nấu bếp 60-80 suất tại Hồ Đắc Di

Tổng quan khu bếp 60-80 suất tại Hồ Đắc Di

Tổng quan khu bếp 60-80 suất tại Hồ Đắc Di-1

Tổng quan khu bếp 60-80 suất tại Hồ Đắc Di-2
Tổng quan khu bếp 60-80 suất tại Hồ Đắc Di-3 
Tổng quan khu bếp 60-80 suất tại Hồ Đắc Di-4
Tổng quan khu bếp 60-80 suất tại Hồ Đắc Di-5

Tổng quan khu bếp 60-80 suất tại Hồ Đắc Di-6
Tổng quan khu bếp 60-80 suất tại Hồ Đắc Di-7
Tổng quan khu bếp 60-80 suất tại Hồ Đắc Di-8
Tổng quan khu bếp 60-80 suất tại Hồ Đắc Di-9
Tổng quan khu bếp 60-80 suất tại Hồ Đắc Di-10
5. Video thực tế khi thi công :
Video lắp đặt thiết bị bếp quy mô 60-80 suất tại Hồ Đắc Di
6.Lợi ích khi BIDV lựa chọn dịch vụ của chúng tôi:
Thiết kế theo yêu cầu – đúng mặt bằng thực tế
Sản phẩm chất lượng cao, độ bền vượt trội
Đảm bảo an toàn vệ sinh và phòng cháy chữa cháy
Tiến độ thi công nhanh chóng, đúng kế hoạch
Hỗ trợ tư vấn, bảo trì lâu dài
7.Dịch vụ lắp đặt bếp công nghiệp Khang Phát
Khang Phát tự hào là đơn vị chuyên thiết kế – thi công – lắp đặt bếp công nghiệp trường học, bệnh viện, nhà máy trên toàn quốc.
Đội ngũ kỹ sư, kỹ thuật viên nhiều kinh nghiệm
Thiết bị chất lượng cao, inox chuẩn 304 hoặc nhập khẩu chính hãng
Dịch vụ bảo hành dài hạn – bảo trì định kỳ
Bạn cần tư vấn thiết kế – báo giá chi tiết thiết bị bếp trường mầm non? Hãy liên hệ ngay với chúng tôi để nhận:
Mặt bằng sơ đồ bếp tối ưu
Danh mục thiết bị theo quy mô suất ăn
Giải pháp tiết kiệm chi phí và vận hành hiệu quả
CÔNG TY CỔ PHẦN THƯƠNG MẠI & SẢN XUẤT KHANG PHÁT – BẾP CÔNG NGHIỆP KHANG PHÁT
Địa chỉ: Tòa nhà MD Complex – Nguyễn Cơ Thạch – Nam Từ Liêm – Hà Nội
Xưởng SX: Đường Tây Mỗ – Nam Từ Liêm – Hà Nội
Hotline: 0944 654 584
Email: bepcongnghiepkp@gmail.com
Website: https://bepcongnghiepkp.vn



Địa chỉ Tây Mỗ – Nam Từ liêm – Hà Nội
Hotline
Email bepcongnghiepkp@gmail.com
Ý kiến của bạn