Việc đầu tư hệ thống bếp ăn đạt chuẩn cho cán bộ nhân viên đang được nhiều đơn vị, doanh nghiệp quan tâm, trong đó có các ngân hàng lớn. Mới đây, ngân hàng BIDV – Chi nhánh 197 Quang Trung, Hà Đông đã lựa chọn giải pháp cung cấp và lắp đặt thiết bị bếp công nghiệp từ chúng tôi nhằm đảm bảo vận hành bếp ăn nội bộ chuyên nghiệp, an toàn và đáp ứng công suất phục vụ hàng trăm suất ăn mỗi ngày.
1. Thông tin dự án
- Tên dự án: Cung cấp và lắp đặt thiết bị bếp ăn cho nhân viên Ngân hàng BIDV
- Địa điểm: 197 Quang Trung – Hà Đông- Hà Nội
- Thời gian thực hiện: Tháng 11/2025
- Chủ đầu tư: Ngân hàng BIDV chi nhánh Quang Trung- Hà Đông- Hà Nội
- Đơn vị thi công: Công ty CP TM & SX Khang Phát
2. Nhu cầu lắp đặt thiết bị bếp tại ngân hàng BIDV 197 Quang Trung
Với số lượng nhân viên đông, BIDV Hà Đông đặt mục tiêu xây dựng khu bếp ăn hiện đại, tiết kiệm diện tích, đảm bảo an toàn vệ sinh thực phẩm và đáp ứng tiêu chuẩn của bếp công nghiệp hiện nay.
Để giải quyết bài toán này, ngân hàng cần hệ thống gồm:
-
Thiết bị bếp nấu công nghiệp Inox 304
-
Hệ thống hút mùi – thông gió
-
Bếp điện từ xào lõm, bếp điện từ phẳng hầm, bếp chiên rán
-
Tủ hấp cơm điện công nghiệp
-
Bàn sơ chế, chậu rửa inox có gờ chắn
-
Thiết bị lưu trữ thực phẩm: tủ lạnh, tủ đông mát 4 cánh
-
Thiết bị phụ trợ: giá kệ inox, xe đẩy….
2. Giải pháp chúng tôi cung cấp cho dự án BIDV Hà Đông
Dựa trên mặt bằng thực tế của ngân hàng BIDV 197 Quang Trung, đội ngũ kỹ thuật đã khảo sát và đưa ra phương án thiết kế tối ưu, bao gồm:
Thiết kế bếp công nghiệp theo quy trình một chiều
Giúp đảm bảo vệ sinh, tránh lẫn chéo thực phẩm sống – chín.
Lắp đặt thiết bị bếp Inox 304 chống gỉ
Tất cả sản phẩm sử dụng chất liệu Inox 304 tiêu chuẩn, độ bền cao, phù hợp môi trường ẩm nóng.
Hệ thống hút mùi – thông gió hiệu suất cao
Được thiết kế phù hợp diện tích bếp, giảm nhiệt, khử mùi hiệu quả, tạo môi trường làm việc thoáng mát.
Thiết bị nấu nướng tiết kiệm năng lượng
-
Bếp điện từ lõm công nghiệp
-
Bếp điện từ phẳng công nghiệp
-
Tủ hấp cơm điện 12 khay
Giúp tối ưu công suất, phục vụ số lượng lớn nhân viên vào giờ cao điểm.
3. Thiết kế khu bếp cho ngân hàng BIDV :

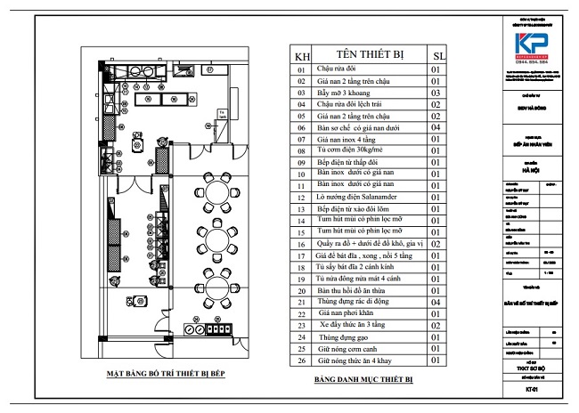
Mặt bằng bố trí thiết bị khu bếp ngân hàng BIDV – 197 Quang Trung

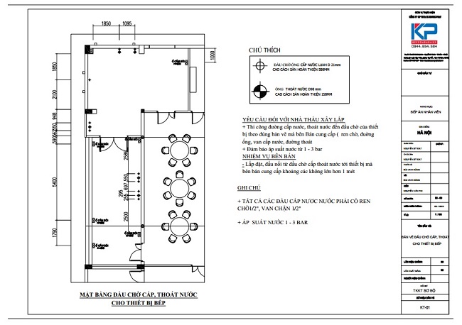
Đầu chờ cấp, thoát nước cho thiết bị khu bếp ngân hàng BIDV – 197 Quang Trung

Đầu chờ cấp điện cho thiết bị khu bếp ngân hàng BIDV – 197 Quang Trung
4. Hình ảnh thực tế thiết bị khu bếp cho ngân hàng BIDV :

Khu sơ chế thô khu bếp ngân hàng BIDV Quang Trung

Khu sơ chế thô khu bếp ngân hàng BIDV Quang Trung- 1
Bàn Chặt khu sơ chế thô khu bếp ngân hàng BIDV Quang Trung

Khu sơ chế tinh khu bếp ngân hàng BIDV Quang Trung

Khu Tủ đông mát và tủ sấy, tủ bát đĩa ngân hàng BIDV Quang Trung

Khu sơ chế thô khu bếp ngân hàng BIDV Quang Trung-1

Khu nấu bếp điện từ ngân hàng BIDV Quang Trung

Khu nấu bếp điện từ ngân hàng BIDV Quang Trung-1

Khu nấu bếp điện từ ngân hàng BIDV Quang Trung-2

Khu nấu bếp điện từ ngân hàng BIDV Quang Trung-3

Chi tiết quầy ra đồ cho bếp ăn ngân hàng BIDV Quang Trung

Chi tiết xe đẩy thức ăn 3 tầng cho bếp ăn ngân hàng BIDV Quang Trung

Chi tiết quầy giữ nóng thức ăn và quầy giữ nóng cơm canh cho bếp ăn ngân hàng BIDV Quang Trung
Video toàn bộ lắp đặt khu bếp cho ngân hàng BIDV tại 197 Quang Trung Hà Đông
5.Lợi ích khi BIDV lựa chọn dịch vụ của chúng tôi:
Thiết kế theo yêu cầu – đúng mặt bằng thực tế
Sản phẩm chất lượng cao, độ bền vượt trội
Đảm bảo an toàn vệ sinh và phòng cháy chữa cháy
Tiến độ thi công nhanh chóng, đúng kế hoạch
Hỗ trợ tư vấn, bảo trì lâu dài
6.Dịch vụ lắp đặt bếp công nghiệp Khang Phát
Khang Phát tự hào là đơn vị chuyên thiết kế – thi công – lắp đặt bếp công nghiệp trường học, bệnh viện, nhà máy trên toàn quốc.
Đội ngũ kỹ sư, kỹ thuật viên nhiều kinh nghiệm
Thiết bị chất lượng cao, inox chuẩn 304 hoặc nhập khẩu chính hãng
Dịch vụ bảo hành dài hạn – bảo trì định kỳ
Bạn cần tư vấn thiết kế – báo giá chi tiết thiết bị bếp trường mầm non? Hãy liên hệ ngay với chúng tôi để nhận:
Mặt bằng sơ đồ bếp tối ưu
Danh mục thiết bị theo quy mô suất ăn
Giải pháp tiết kiệm chi phí và vận hành hiệu quả
CÔNG TY CỔ PHẦN THƯƠNG MẠI & SẢN XUẤT KHANG PHÁT – BẾP CÔNG NGHIỆP KHANG PHÁT
Địa chỉ: Tòa nhà MD Complex – Nguyễn Cơ Thạch – Nam Từ Liêm – Hà Nội
Xưởng SX: Đường Tây Mỗ – Nam Từ Liêm – Hà Nội
Hotline: 0944 654 584
Email: bepcongnghiepkp@gmail.com
Website: https://bepcongnghiepkp.vn



Địa chỉ Tây Mỗ – Nam Từ liêm – Hà Nội
Hotline
Email bepcongnghiepkp@gmail.com
Ý kiến của bạn