Nhà hàng Chao Quán tại Hòa Lạc – Thạch Thất – Hà Nội là mô hình ẩm thực hiện đại, phục vụ lượng khách lớn mỗi ngày. Với định hướng xây dựng khu bếp chuyên nghiệp, vận hành hiệu quả và đảm bảo vệ sinh an toàn thực phẩm, chủ đầu tư Nguyễn Toàn Thắng đã tin tưởng lựa chọn Công ty Khang Phát làm đối tác thiết kế và thi công bếp ăn công nghiệp trọn gói cho toàn bộ không gian nhà hàng.
Mục lục
1. Giải pháp thiết kế bếp công nghiệp cho Chao Quán

Hình ảnh lắp đặt bếp công nghiệp tại Chao Quán
Dựa trên nhu cầu sử dụng thực tế và quy trình vận hành của Chao Quán, đội ngũ kỹ thuật Khang Phát đã thiết kế khu bếp công nghiệp được chia thành 4 khu vực chức năng chính, đảm bảo quy trình làm việc khép kín – từ khâu sơ chế, chế biến, ra món đến rửa vệ sinh.
Các khu vực chính bao gồm:
-
Khu sơ chế & rửa rau củ: Trang bị bàn inox 1–2 giá dưới, bồn rửa 2 chậu, kệ inox 4 tầng giúp thao tác nhanh, thuận tiện và đảm bảo vệ sinh.
-
Khu bếp nấu & chế biến salad: Sử dụng bàn phẳng, bàn lạnh 2 cánh, kệ 2 tầng trên bàn (3m) giúp sắp xếp dụng cụ gọn gàng, tối ưu không gian thao tác.
-
Khu trữ lạnh: Lắp đặt tủ mát, tủ đông và bàn lót gỗ, bảo quản nguyên liệu đạt chuẩn an toàn thực phẩm.
-
Khu rửa bát & vệ sinh: Bố trí bàn bát sạch – bàn bát bẩn, giá inox 4 tầng, giúp quy trình dọn rửa khép kín, sạch sẽ và hiệu quả.
2. Danh mục thiết bị inox trong khu bếp
Một số thiết bị chính được lắp đặt tại bếp Chao Quán gồm:
-
Bàn inox 1 giá dưới (KT: 1200–1500mm)
-
Bàn 2 giá phẳng, bàn lạnh 2 cánh (KT: 1500mm)
-
Kệ inox 4 tầng, kệ 2 tầng trên bàn (KT: 3000mm)
-
Bàn inox 2 chậu, bàn 1 chậu (KT: 1500mm)
-
Bàn bát sạch, bàn bát bẩn
-
Bàn lót gỗ, giá kệ inox
Toàn bộ thiết bị được Công ty Khang Phát sản xuất từ inox 304 cao cấp, đạt tiêu chuẩn chống gỉ sét, chịu lực, dễ vệ sinh và an toàn tuyệt đối cho thực phẩm.
4. Lợi ích khi thiết kế bếp ăn công nghiệp chuyên nghiệp
-
Tối ưu công năng và diện tích sử dụng: Bố cục hợp lý giúp đầu bếp thao tác nhanh và an toàn.
-
Đảm bảo tiêu chuẩn vệ sinh – an toàn thực phẩm: Toàn bộ thiết bị được làm từ inox 304 chống bám bẩn, dễ lau chùi.
-
Tăng hiệu suất hoạt động: Quy trình chế biến khoa học, giảm thiểu thời gian di chuyển và thao tác.
-
Tăng thẩm mỹ – chuyên nghiệp: Khu bếp sáng, sạch, hiện đại, tạo cảm hứng làm việc cho nhân viên.
5. Hình ảnh thực tế thi công và lắp đặt

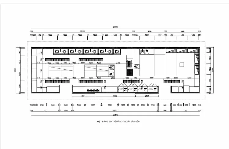
Sơ đồ mặt bằng bố trí sàn bếp

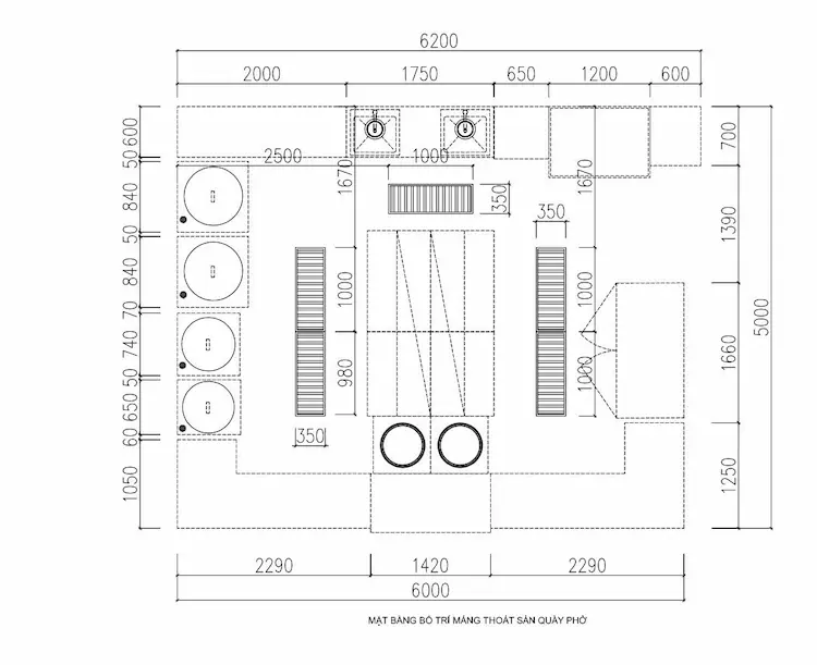
Sơ đồ mặt bằng bố trí sàn quầy phở

Hình ảnh lắp đặt bếp công nghiệp tại Chao Quán

Khu để đồ, bảo quản thực phẩm

Hình ảnh khu sơ chế và rửa rau củ

Hệ thống khu trữ lạnh

Khu vực bếp nấu ăn

Hệ thống khu trữ đông

Khu bếp nấu bằng các nồi inox

Khu vực bếp nấu ăn

Khu ra món ăn và tiếp khách
Video thi công thực tế tại Quán chao
6. Khang Phát – Đơn vị thiết kế và thi công bếp công nghiệp uy tín tại Hà Nội
Với hơn 10 năm kinh nghiệm trong lĩnh vực thiết kế – sản xuất – thi công bếp ăn công nghiệp, Công ty CP TM & SX Khang Phát là đơn vị được nhiều nhà hàng, khách sạn, bếp ăn tập thể và trường học tin tưởng lựa chọn.
Khang Phát luôn cam kết mang đến giải pháp bếp tối ưu nhất cho từng không gian – từ khâu tư vấn thiết kế, sản xuất thiết bị inox đến thi công lắp đặt và bảo hành trọn gói.
Liên hệ ngay để được tư vấn & nhận báo giá chi tiết:
- Hotline: 0944 654 584
- Email: bepcongnghiepkp@gmail.com
- Website: https://bepcongnghiepkp.vn



Địa chỉ Tây Mỗ – Nam Từ liêm – Hà Nội
Hotline
Email bepcongnghiepkp@gmail.com
Ý kiến của bạn