1. Thông tin dự án:
Tên dự án: Cung cấp và lắp đặt thiết bị bếp ăn cho Viện Kiểm Sát Tỉnh Quảng Ninh
Địa điểm: Phường Hùng Thắng, Thành Phố Hạ Long, Tỉnh Quảng Ninh
Thời gian thực hiện: Tháng 01/2026
Chủ đầu tư: Kiểm Sát Nhân Tỉnh Quảng Ninh
Đơn vị thi công: Công ty CP TM & SX Khang Phát
2 Khảo sát & thiết kế mặt bằng
Trước khi lắp đặt, cần:
Khảo sát diện tích bếp, số lượng suất ăn/ngày
Phân khu rõ ràng:
Khu sơ chế
Khu nấu chính
Khu chia suất
Khu rửa & vệ sinh
Thiết kế theo nguyên tắc một chiều để đảm bảo vệ sinh an toàn thực phẩm
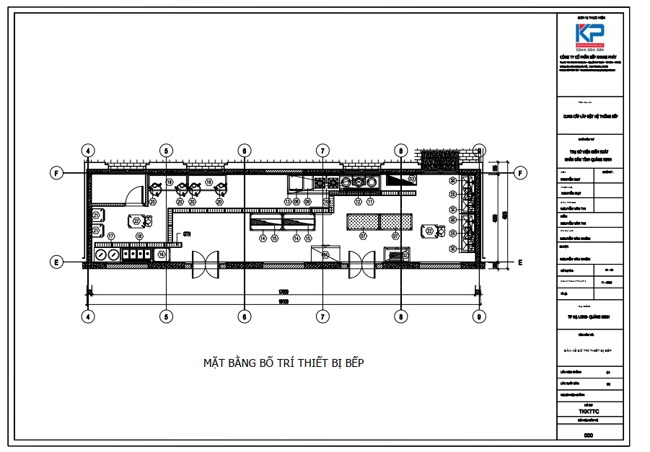
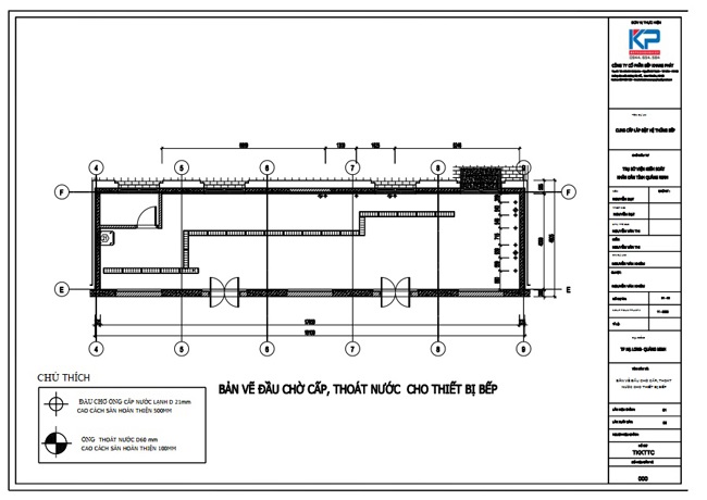
3. Bản vẽ thiết kế thiết bị bếp :

Bản vẽ thiết kế bố trí thiết bị bếp cho Viện Kiểm Sát

Bản vẽ đầu chờ cấp, thoát nước cho thiết bị bếp cho Viện Kiểm Sát

Bản vẽ đầu chờ cấp điện thiết bị bếp cho Viện Kiểm Sát
4. Hình ảnh thực tế lắp đặt :

Khu sơ chế rửa trong bếp ăn Viện Kiểm Sát

Khu nấu dùng ga trong bếp ăn Viện Kiểm Sát

Khu soạn chia trong bếp ăn Viện Kiểm Sát

Khu giữ nóng thức ăn trong bếp ăn Viện Kiểm Sát

Hệ thống xe đẩy thức ăn và xe thu hồi đồ trong bếp ăn Viện Kiểm Sát

Khu thu hồi đồ ăn thừa trong bếp ăn Viện Kiểm Sát

Tủ sấy khay bát đĩa trong bếp ăn Viện Kiểm Sát

Hệ thống quạt hút mùi cho bếp Viện Kiểm Sát
5. Video thực tế lắp đặt :
Video lắp thiết bị bếp cho Viện Kiểm Sát
6 .Lợi ích khi BIDV lựa chọn dịch vụ của chúng tôi:
Thiết kế theo yêu cầu – đúng mặt bằng thực tế
Sản phẩm chất lượng cao, độ bền vượt trội
Đảm bảo an toàn vệ sinh và phòng cháy chữa cháy
Tiến độ thi công nhanh chóng, đúng kế hoạch
Hỗ trợ tư vấn, bảo trì lâu dài
7.Dịch vụ lắp đặt bếp công nghiệp Khang Phát
Khang Phát tự hào là đơn vị chuyên thiết kế – thi công – lắp đặt bếp công nghiệp trường học, bệnh viện, nhà máy trên toàn quốc.
Đội ngũ kỹ sư, kỹ thuật viên nhiều kinh nghiệm
Thiết bị chất lượng cao, inox chuẩn 304 hoặc nhập khẩu chính hãng
Dịch vụ bảo hành dài hạn – bảo trì định kỳ
Bạn cần tư vấn thiết kế – báo giá chi tiết thiết bị bếp trường mầm non? Hãy liên hệ ngay với chúng tôi để nhận:
Mặt bằng sơ đồ bếp tối ưu
Danh mục thiết bị theo quy mô suất ăn
Giải pháp tiết kiệm chi phí và vận hành hiệu quả
CÔNG TY CỔ PHẦN THƯƠNG MẠI & SẢN XUẤT KHANG PHÁT – BẾP CÔNG NGHIỆP KHANG PHÁT
Địa chỉ: Tòa nhà MD Complex – Nguyễn Cơ Thạch – Nam Từ Liêm – Hà Nội
Xưởng SX: Đường Tây Mỗ – Nam Từ Liêm – Hà Nội
Hotline: 0944 654 584
Email: bepcongnghiepkp@gmail.com
Website: https://bepcongnghiepkp.vn



Địa chỉ Tây Mỗ – Nam Từ liêm – Hà Nội
Hotline
Email bepcongnghiepkp@gmail.com
Ý kiến của bạn